Fonds de commerce / Droit au bail

Prix sur demande
Exclusive Estate Monaco

Exclusive Estate Monaco

23 Bd Princesse Charlotte

Réf. : EEM-V-25
Prix : Sur demande
Type de bien : Fonds de commerce
Quartier : Monte-Carlo (Monaco)
Superficie hab. : 330 m²
Superficie totale : 330 m²
Etage : RDC

Plus de détails

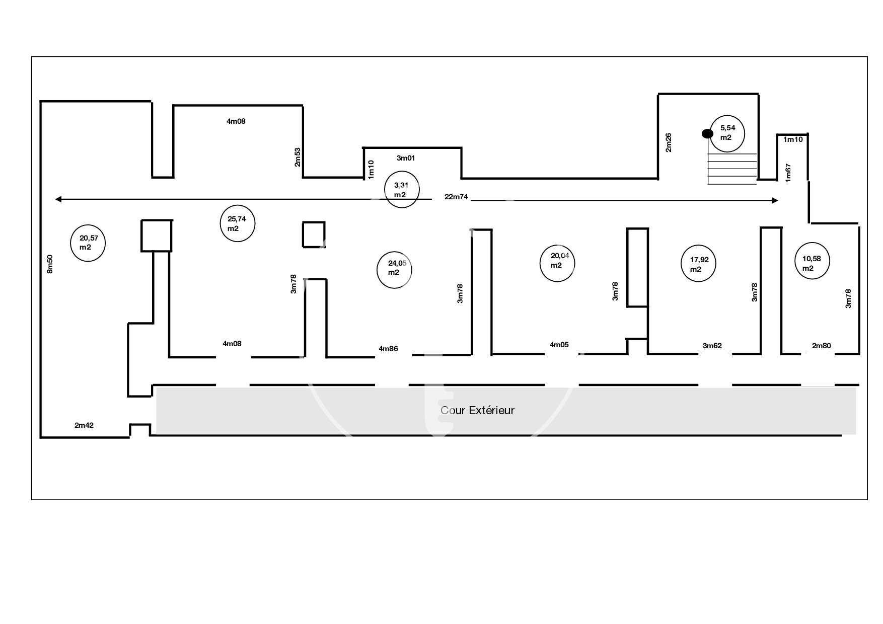
Bail tous commerces. Une opportunité rare dans un cadre d’exception

Cession d’un fonds de commerce idéalement situé au cœur de l’artère commerçante de Monte-Carlo, sur le prestigieux boulevard des Moulins. Ce local raffiné se distingue par sa vitrine attrayante et son emplacement stratégique.

L’espace se déploie sur deux niveaux :

  • Rez-de-chaussée : 150 m², agrémenté d’une élégante vitrine.
  • Sous-sol : 180 m² soigneusement aménagés en espace de stockage et bureaux.

 

Exclusive Estate Monaco

Exclusive Estate Monaco

23 Bd Princesse Charlotte

Contact

GJKTWZ
Copiez le code dans la zone à sa droite
* informations obligatoires

Monte-Carlo

Découvrez les appartements au cœur de Monte-Carlo.

Quartier emblématique de Monaco, Monte-Carlo offre des résidences prestigieuses et une vie animée. Parcourez les biens disponibles.

Quartiers de Monaco

Mareterra Carré d'Or Condamine Fontvieille Jardin Exotique La Rousse - Saint Roman Larvotto Monaco-Ville Moneghetti Monte-Carlo Port