Grand appartement familial en duplex | Immeuble moderne | Condamine

14 400 000 €
Miells-Christie's

Miells-Christie's

14 Avenue de la Costa

Au cœur du quartier prisé de La Condamine, à deux pas du port, découvrez ce superbe duplex familial offrant de beaux volumes, une luminosité remarquable et des vues mer, au sein de la résidence de standing Le Stella avec conciergerie et salle de sport.

Réf. : MP-3018
Prix : 14 400 000 €
Nombre de pièces : 4 pièces
Chambres : 3
SDB : 3
Type de bien : Appartement
Immeuble : Le Stella
Quartier : Condamine (Monaco)
Superficie hab. : 187 m²
Superficie totale : 213 m²
Superficie terrasse : 26 m²
Etage : High
Libération : Disponible
Parkings : 2

Plus de détails

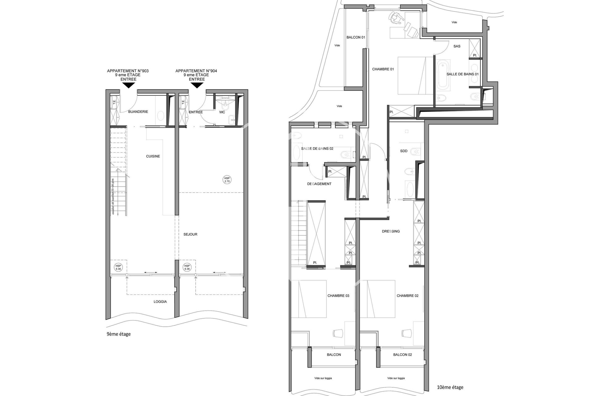
Situé dans le quartier historique et commerçant de la Condamine, à quelques pas du port, ce bel appartement familial en duplex offres des volumes généreux et des espaces de vie soigneusement élaborés.
Vaste et lumineux, il se compose au 1er étage d'une entrée avec toiletes invités, un séjour avec loggia offrant une vue mer, une grande cuisine équipée avec son espace repas et loggia ainsi qu'une buanderie.

Un escalier menant au niveau supérieur, l'espace nuit, composé d'un palier desservant la suite parentale avec balcon et vue mer, un dressing, un espace bureau et salle de douche attenante, une seconde suite avec balcon, salle de bains attenante et placards, ainsi qu'une 3ème chambre avec rangements et salle de douche séparée.
Possibilité d'acheter meublé.

Une cave et 2 parkings sont inclus.

Le Stella est un immeuble de très bon standing avec service de conciergerie et salle de sport. Son architecture épurée offre à ses résidents un cadre de vie contemporain et intimiste.
Miells-Christie's

Miells-Christie's

14 Avenue de la Costa

Contact

CFHKVW
Copiez le code dans la zone à sa droite
* informations obligatoires

Situation du bien

Condamine

Le quartier de la Condamine à Monaco est un lieu dynamique et animé, situé entre le port Hercule et le Rocher.

Ce secteur historique est connu pour ses charmantes rues commerçantes, son marché traditionnel et sa proximité avec les principales attractions monégasques.

Idéal pour les résidents et les investisseurs, la Condamine offre un cadre de vie exceptionnel mêlant modernité et authenticité.

Quartiers de Monaco

Mareterra Carré d'Or Condamine Fontvieille Jardin Exotique La Rousse - Saint Roman Larvotto Monaco-Ville Moneghetti Monte-Carlo Port