LEONARDO PALACE - ETAGE COMPLET - VUE MER

51 800 000 €
Lorenza von Stein Monaco

Lorenza von Stein Monaco

47, boulevard du Jardin Exotique

Bienvenue au Palazzo Leonardo, une résidence de luxe exceptionnelle. Cette résidence spacieuse offre intimité et exclusivité grâce à son accès privé et à son service de conciergerie 24/7.
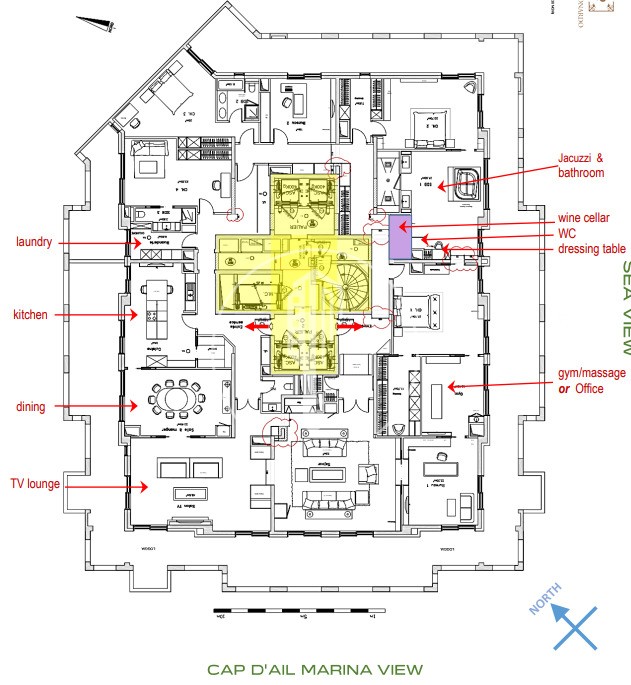
Idéal pour une famille, cet appartement s'étend sur 750m2 et un étage complet.
Actuellement disposé d'un vaste triple séjour, 6 chambres à coucher et 4 salles de bain. Une véritable opportunité d'un réaménagement complet vous est offerte afin de personnaliser l'espace selon vos goûts.

La terrasse s'étend sur tout l'étage, permettant un accès direct à l'extérieur et une vue panoramique sur la mer depuis chaque pièce.

Réf. : VMC2165-
Prix : 51 800 000 €
Nombre de pièces : 9
Chambres : 5+
SDB : 4
Type de bien : Appartement
Immeuble : Palazzo Leonardo
Quartier : Fontvieille (Monaco)
Superficie hab. : 500 m²
Superficie totale : 750 m²
Superficie terrasse : 250 m²
Etage : 6
Libération : Libre
Parkings : 5+

Plus de détails

La propriété se compose comme suit : un hall d'entrée, un double salon/salle à manger, une salle à manger, une cuisine entièrement équipée avec îlot, une buanderie, 6 chambres, avec de nombreux rangements dont 2 dressing, 4 salles de bains.

Enfin, La propriété est vendue avec 6 places de parkings et 2 caves dans la résidence.

Lorenza von Stein Monaco

Lorenza von Stein Monaco

47, boulevard du Jardin Exotique

Contact

BHLMSU
Copiez le code dans la zone à sa droite
* informations obligatoires

Situation du bien

Quartiers de Monaco

Mareterra Carré d'Or Condamine Fontvieille Jardin Exotique La Rousse - Saint Roman Larvotto Monaco-Ville Moneghetti Monte-Carlo Port