SARDANAPALE

5 035 000 €
AFIM SAM

AFIM SAM

3, avenue de Grande Bretagne

Réf. : 517V16036A
Prix : 5 035 000 €
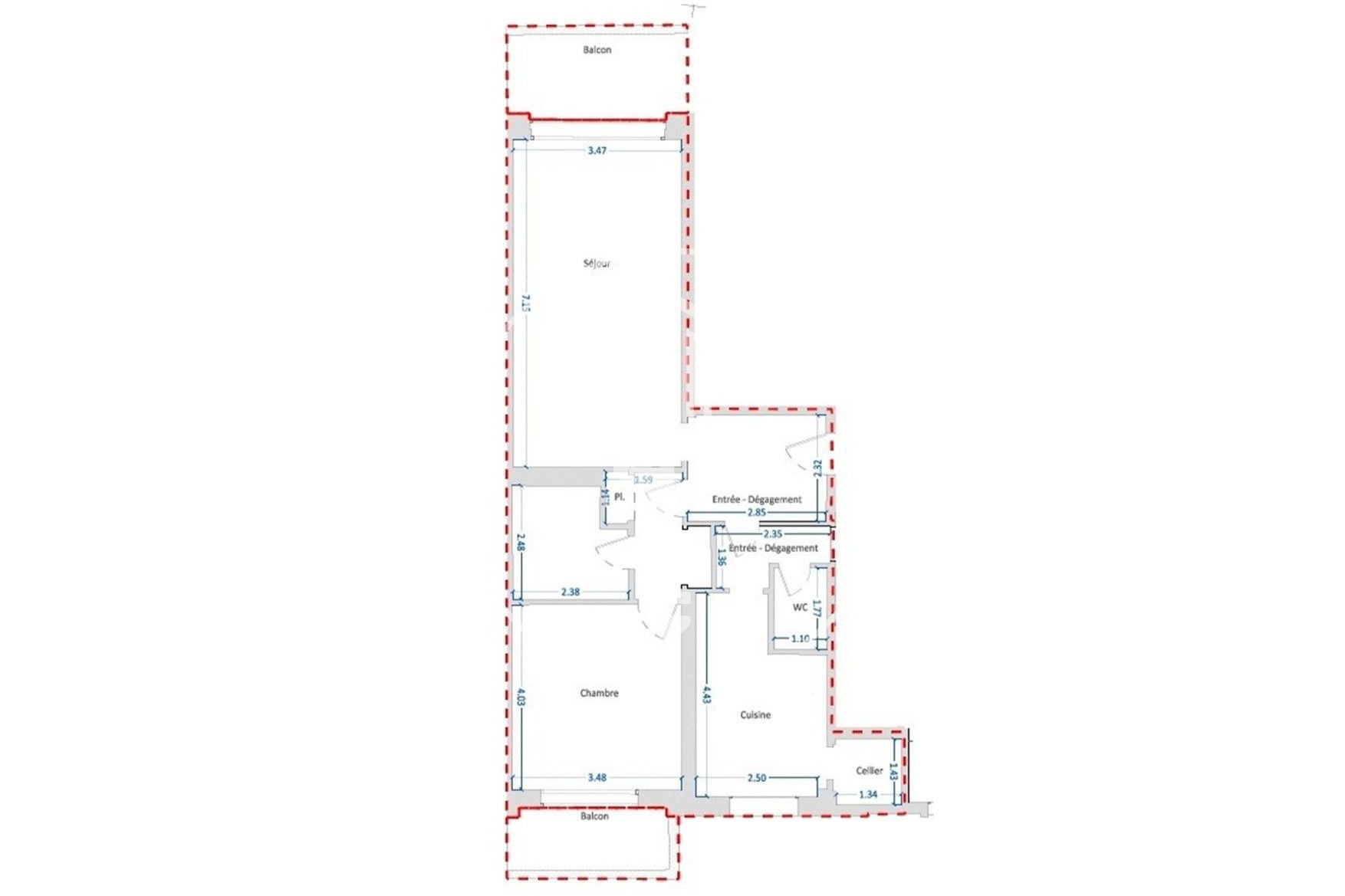
Nombre de pièces : 2 pièces
Chambres : 1
SDB : 1
Type de bien : Appartement
Immeuble : Sardanapale
Quartier : Carré d'Or (Monaco)
Superficie hab. : 85 m²
Superficie totale : 98 m²
Superficie terrasse : 13 m²

Plus de détails

En plein carré d'Or, Grand 2 pièces avec Vue imprenable sur le circuit du Grand Prix depuis le balcon arrière et la cuisine.

L'appartement est climatisé et pourvu de doubles baies vitrées pour une insonorisation optimale. Potentiel de transformation en 3 pièces.
AFIM SAM

AFIM SAM

3, avenue de Grande Bretagne

Contact

BGHMQR
Copiez le code dans la zone à sa droite
* informations obligatoires

Situation du bien

Quartiers de Monaco

Mareterra Carré d'Or Condamine Fontvieille Jardin Exotique La Rousse - Saint Roman Larvotto Monaco-Ville Moneghetti Monte-Carlo Port