L'Ambassador - Boulevard des Moulins

2 900 000 €
FCF Cristea-Flandrin Immobilier

FCF Cristea-Flandrin Immobilier

21, boulevard des Moulins

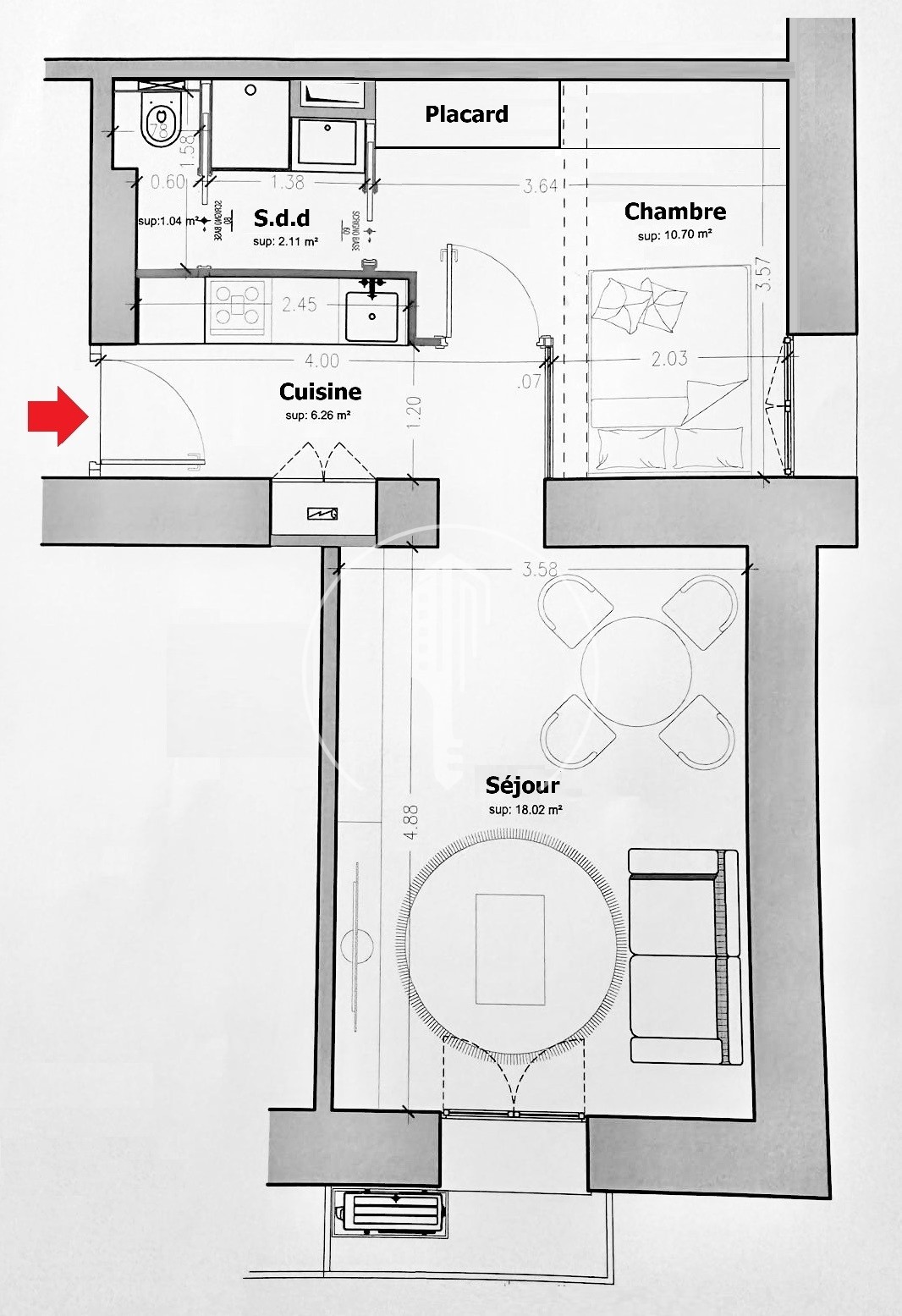
Idéal pied-à-terre, appartement de 2 PIECES principales entièrement rénové, idéalement situé à proximité de nombreux commerces, restaurants et autres commodités parmi lesquelles les ascenseurs publics facilitant l’accès direct au Quartier des Plages.

Réf. : FFV1053
Prix : 2 900 000 €
Nombre de pièces : 2 pièces
Type de bien : Appartement
Immeuble : Ambassador
Quartier : Monte-Carlo (Monaco)
Superficie hab. : 51 m²
Superficie totale : 53 m²
Superficie terrasse : 2 m²

Plus de détails

Entrée, kitchenette équipée, séjour, chambre avec rangement, salle douche complète, climatisation

FCF Cristea-Flandrin Immobilier

FCF Cristea-Flandrin Immobilier

21, boulevard des Moulins

Contact

BMNSTZ
Copiez le code dans la zone à sa droite
* informations obligatoires

Situation du bien

Quartiers de Monaco

Mareterra Carré d'Or Condamine Fontvieille Jardin Exotique La Rousse - Saint Roman Larvotto Monaco-Ville Moneghetti Monte-Carlo Port