Appartements à vendre à Monaco

Exclusif - Carré d'Or - Le Winter Palace - Duplex penthouse à rénover

Retour à la liste

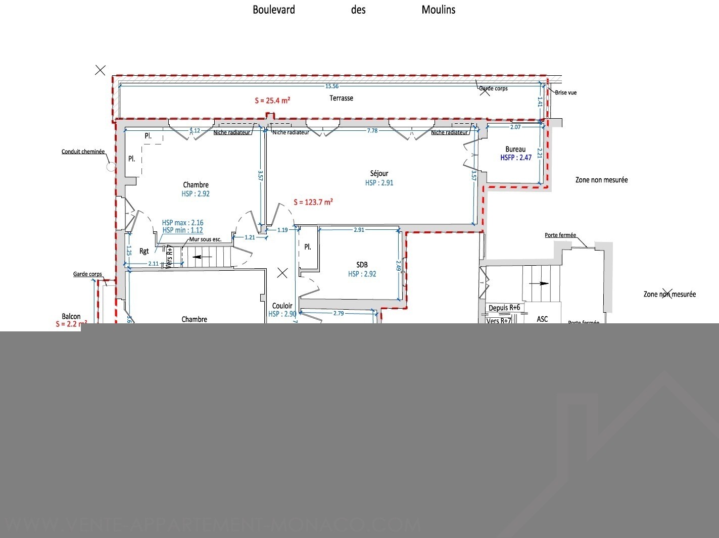
Situé aux 6ᵉ et 7ᵉ étages d’un immeuble bourgeois, ce rare duplex penthouse séduit par son fort potentiel, sa configuration optimisée et ses volumes généreux.

Il se compose d’un séjour lumineux, de deux chambres, d’une cuisine indépendante et de deux salles de bains.

À l’étage supérieur, une superbe toiture-terrasse privative de 111,3 m² offre un véritable espace de vie en plein air, déjà aménagé d’une cuisine extérieure, idéale pour recevoir et profiter pleinement des beaux jours.

L’appartement nécessite une rénovation complète, laissant à son futur propriétaire l’opportunité de le repenser entièrement selon ses goûts et ses envies.

11 200 000 €
Nombre de pièces : 3 pièces
Type de bien : Appartement
Ville : Monaco
Pays : Monaco
Etage : 6

Situé aux 6ᵉ et 7ᵉ étages d’un immeuble bourgeois, ce rare duplex penthouse offre un fort potentiel grâce à sa configuration et à ses volumes généreux.

Comprenant :

- un séjour lumineux,
- 2 chambres,
- une cuisine indépendante,
- 2 salles de bains.

L’étage supérieur dévoile une superbe toiture-terrasse de 111.3 m², entièrement privative, aménagée d’une cuisine extérieure, idéale pour profiter d’un espace de vie en plein air.

L’appartement nécessite une rénovation complète, permettant à son futur propriétaire de le repenser entièrement selon ses goût


Situation du bien

Agence

John Taylor
20, boulevard des Moulins

www.john-taylor.fragence-immobiliere-de-prestigemonaco

+377 93 50 30 70

Contact

* informations obligatoires

Retour à la liste

FR EN IT

Quartiers de Monaco

Anse du Portier / Carré d'Or / Condamine / Fontvieille / Jardin Exotique / La Rousse - Saint Roman / Larvotto / Monaco-Ville / Moneghetti / Monte-Carlo / Port