Plusieurs studios au coeur de la Condamine

Prix sur demande
Miells-Christie's

Miells-Christie's

14 Avenue de la Costa

Nous vous proposons à la vente plusieurs grands studios au sein d'un immeuble prestigieux en plein cœur du quartier historique de la Condamine. Proche des nombreux commerces et restaurants, ces biens offrent une position centrale à deux pas du Port Hercule.

Réf. : MP-2897
Prix : Sur demande
Nombre de pièces : studio
SDB : 1
Type de bien : Appartement
Immeuble : Le 45G
Quartier : Condamine (Monaco)
Superficie hab. : 50 m²
Superficie totale : 50 m²
Etage : 2
Libération : 15/06/2026

Plus de détails

Situés dans l'un des immeubles les plus récents et élégants de Monaco, en plein coeur du quartier de la Condamine, plusieurs studios de 46m2 à 62m2 qui incarnent le raffinement et le confort moderne.
Ces studios sont de parfaits pieds à terre en Principauté ou intéressants pour des investissements locatifs, ils bénéficient de finitions haut de gamme et d'un agencement soigné afin d'optimiser l'espace.

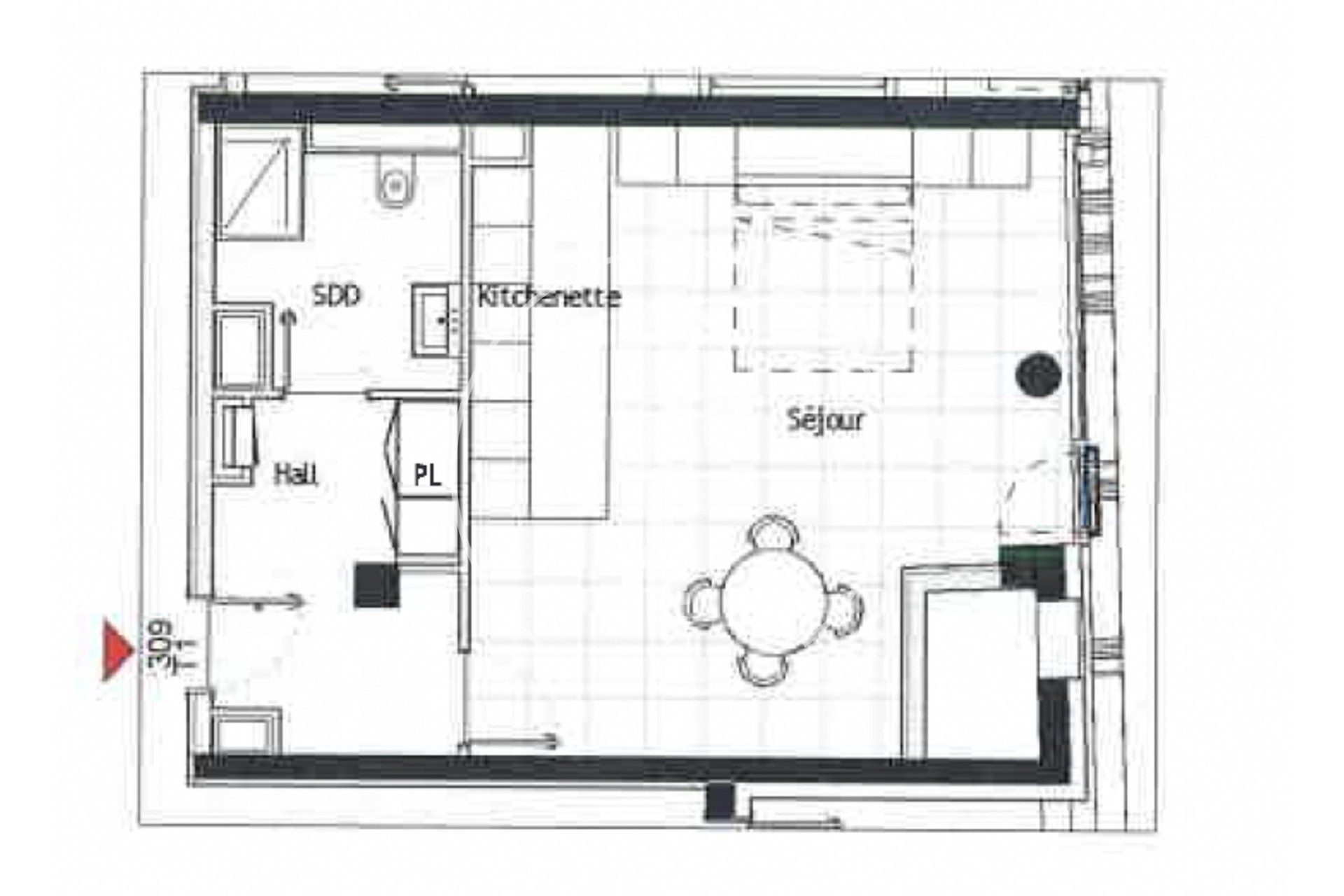
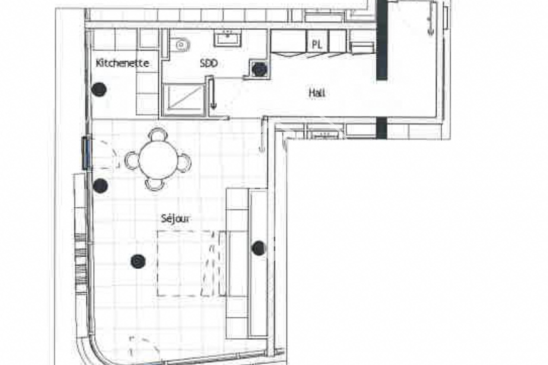
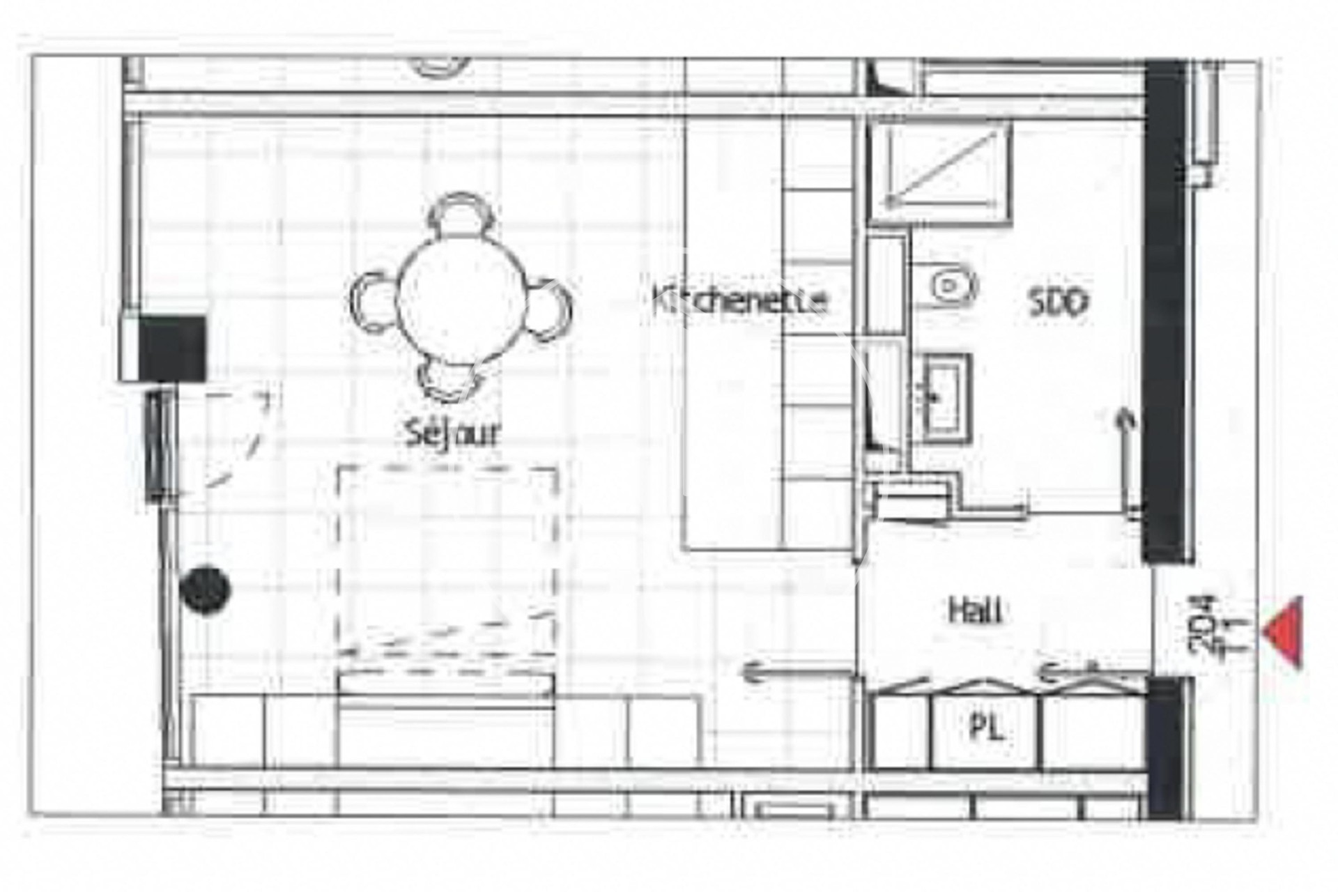
Chaque studio se compose d'un hall d'entrée, une pièce principale avec une cuisine ouverte, et une salle de bains complète.
Les studios peuvent également être réunis pour former des 2 pièces ou 3 pièces.

Un parking sécurisé au sein de la résidence peut être acquis en supplément, pour un confort optimal au quotidien.

Les biens sont loués avec des échéances annuelles.

La résidence 45 G à Monaco est un véritable joyau architectural moderne qui allie style contemporain et éléments de design épurés. Chaque appartement offre des prestations hors du commun avec des sols en marbre, des équipements haut de gamme et des installations design.
Miells-Christie's

Miells-Christie's

14 Avenue de la Costa

Contact

JLRSUZ
Copiez le code dans la zone à sa droite
* informations obligatoires

Situation du bien

Quartiers de Monaco

Mareterra Carré d'Or Condamine Fontvieille Jardin Exotique La Rousse - Saint Roman Larvotto Monaco-Ville Moneghetti Monte-Carlo Port