MAGIFIQUE APPARTEMENT CENTRAL

3 690 000 €
Carat Properties

Carat Properties

Tour Odéon 36 av. de l'Annonciade

A deux pas des commerces, commodités et Carré d'Or

Réf. : AL 215 MC
Prix : 3 690 000 €
Nombre de pièces : 2 pièces
Chambres : 1
Type de bien : Appartement
Quartier : Monte-Carlo (Monaco)
Superficie hab. : 50 m²
Superficie totale : 60 m²
Superficie terrasse : 10 m²
Etage : 27
Libération : 1er novembre 2025
Parkings : 1

Plus de détails

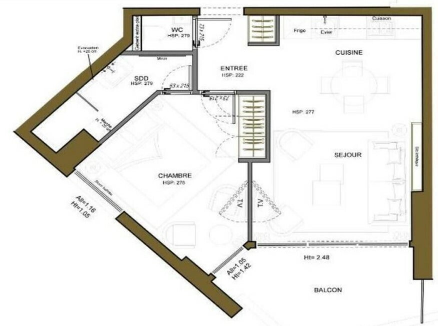
Situé au cœur de Monte-Carlo, dans une résidence avec gardiennage 24h/24, à quelques pas du Casino, au pied d'un supermarché, magnifique appartement rénové composé d'un hall d'entrée avec toilette invités, grand séjour sur loggia avec cuisine ouverte entièrement équipée, chambre avec salle de douche et placards. Belle loggia. Climatisation. Cave.

Possibilité de parking en sus au prix de 300.000 €uros.

Carat Properties

Carat Properties

Tour Odéon 36 av. de l'Annonciade

Contact

HNOSUW
Copiez le code dans la zone à sa droite
* informations obligatoires

Quartiers de Monaco

Mareterra Carré d'Or Condamine Fontvieille Jardin Exotique La Rousse - Saint Roman Larvotto Monaco-Ville Moneghetti Monte-Carlo Port