Appartements à vendre à Monaco

LE CONTINENTAL - 2 PIECES ENTIEREMENT RENOVE

Retour à la liste

Ce 2 pièces, entièrement rénové et meublé, est situé dans la résidence prisée, dénommée le Continental, donnant sur la Place des Moulins. Cet immeuble dispose d'un service de conciergerie et bénéficie d'une localisation privilégiée, à seulement quelques pas de la Place du Casino, du boulevard des Moulins avec ses nombreux commerces et un accès direct aux plages par un ascenseur public.

Situé en étage élevé, l'appartement est baigné de lumière et dispose d'une profonde terrasse offrant une vue mer panoramique.

5 000 000 €
Nombre de pièces : 2 pièces
Type de bien : Appartement
Ville : Monaco
Pays : Monaco
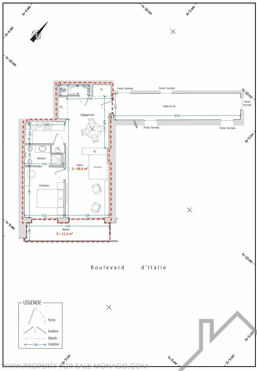
Superficie hab. : 69 m²
Superficie totale : 80 m²
Superficie terrasse : 11 m²
Etage : 10
Libération : À convenir
Meublé : 1

Ce 2 pièces, à usage mixte, est composé d'une entrée menant au salon, d'une cuisine indépendante, entièrement équipée, une belle chambre à coucher avec sa salle de douche, des toilette invités.

La chambre et le salon mènent tous deux à cette belle terrasse.


Situation du bien

Agence

Lorenza von Stein Monaco
47, boulevard du Jardin Exotique

www.lorenzavonstein.com

+377 97 97 02 77

Contact

* informations obligatoires

Retour à la liste

FR EN IT

Quartiers de Monaco

Anse du Portier / Carré d'Or / Condamine / Fontvieille / Jardin Exotique / La Rousse - Saint Roman / Larvotto / Monaco-Ville / Moneghetti / Monte-Carlo / Port