Appartements à vendre à Monaco

APPARTEMENT DANS MAGNIFIQUE RESIDENCE

Retour à la liste

A deux pas des commerces et commodités

2 900 000 €
Nombre de pièces : 2 pièces
Type de bien : Appartement
Ville : Monaco
Pays : Monaco
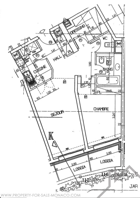
Superficie hab. : 70 m²
Superficie totale : 81 m²
Superficie terrasse : 11 m²
Etage : Rdc
Libération : à définir
Parkings : 1

Magnifique appartement situé dans une Résidence avec gardiennage 24h/24, composé d’un hall d’entrée, un séjour, une cuisine ouverte entièrement aménagée, toilette invités, chambre avec dressing et salle de bains complète, terrasse. Prestations luxueuses.

Cave et parking

L'appartement est actuellement loué jusqu'au 30/09/2024 au prix mensuel de 4.437 € plus charges.

 

 


Situation du bien

Agence

Carat Properties
Tour Odéon 36 av. de l'Annonciade

carat-properties.com

+377 99 99 18 18

Contact

* informations obligatoires

Retour à la liste

FR EN IT

Quartiers de Monaco

Anse du Portier / Carré d'Or / Condamine / Fontvieille / Jardin Exotique / La Rousse - Saint Roman / Larvotto / Monaco-Ville / Moneghetti / Monte-Carlo / Port