Programme neuf et prestations luxueuses | 3 pièces

9 500 000 €
Miells-Christie's

Miells-Christie's

14 Avenue de la Costa

Dans le quartier Saint Roman, proche de toutes commodités et non loin des plages du Larvotto, nous vous proposons un appartement 3 pièces en étage élevé au sein d'un programme neuf, la Villa Ariane.

Réf. : MP-2967
Prix : 9 500 000 €
Nombre de pièces : 3 pièces
Chambres : 2
SDB : 2
Type de bien : Appartement
Immeuble : Villa Ariane
Quartier : La Rousse - Saint Roman (Monaco)
Superficie hab. : 130 m²
Superficie totale : 160 m²
Superficie terrasse : 30 m²
Etage : 9
Libération : Disponible

Plus de détails

La Villa Ariane ne se résume pas à une simple adresse, mais incarne un véritable art de vivre alliant luxe, confort et modernité. Ce bien d’exception, au 16 Boulevard d’Italie, a été conçu à la suite d’une transformation architecturale audacieuse, mêlant habilement le charme du patrimoine historique et les dernières innovations contemporaines.
Les appartements de la Villa Ariane ont été pensés pour offrir un cadre de vie d’exception. Chaque résident pourra profiter de vastes volumes, d’une performance acoustique et thermique de haute qualité, ainsi que d’une vue imprenable sur la Principauté de Monaco. Soucieuse de l’environnement, la résidence adopte une démarche écoresponsable en utilisant des matériaux durables et en intégrant une conception bioclimatique, garantissant ainsi un confort optimal en toutes saisons.

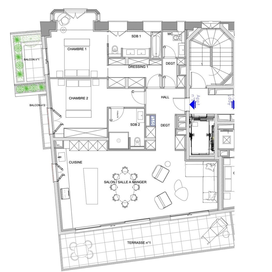
Nous vous proposons au sein de ce programme neuf un appartement 3 pièces composé comme
suit : une entrée, un spacieux séjour, une cuisine ouverte, deux chambres avec salles de bains attenantes et un WC invités. La livraison est prévue pour le premier trimestre 2026.
Frais de notaire réduits à 2,5%
Livraison prévue : 1er trimestre 2026
Miells-Christie's

Miells-Christie's

14 Avenue de la Costa

Contact

ACNTWX
Copiez le code dans la zone à sa droite
* informations obligatoires

Situation du bien

Quartiers de Monaco

Mareterra Carré d'Or Condamine Fontvieille Jardin Exotique La Rousse - Saint Roman Larvotto Monaco-Ville Moneghetti Monte-Carlo Port