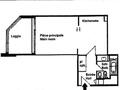
MONTE CARLO SUN / STUDIO AVEC PARKING ET CAVE
Grand studio avec entrée et placard, cuisine équipée, pièce principale, salle de bains et loggia. Une cave et un parking complètent ce bien.
Situation du bien
Agence
15, boulevard Princesse Charlotte