Appartements à vendre à Monaco

RIVIERA PALACE – Monte-Carlo – 3 Pièces Vue Mer & Casino

Retour à la liste

Situé dans le quartier de Monte-Carlo, dans l’immeuble Riviera Palace, ce 3 pièces offre des volumes généreux et deux loggias avec vue sur le Casino et la mer, à quelques pas du Carré d’Or.

9 800 000 €
Nombre de pièces : 3 pièces
Type de bien : Appartement
Ville : Monaco
Pays : Monaco
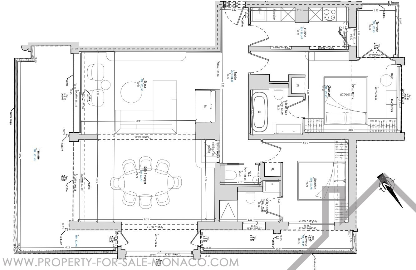
Superficie hab. : 114.3 m²
Superficie totale : 148 m²
Superficie terrasse : 33.7 m²
Etage : 6
Parkings : 1

Situé au 6ᵉ étage, cet appartement bénéficie d’une surface habitable de 114,30 m² et de 33,70 m² de terrasses. Entièrement rénové et meublé, il se compose d’une vaste entrée, d’un salon et d’une salle à manger ouvrant sur deux grandes loggias offrant une vue panoramique sur le Casino de Monte-Carlo et la mer. L’agencement comprend également une cuisine séparée, deux chambres, deux salles de bains et des toilettes pour invités.

Deux places de parking dans l'immeuble.


Situation du bien

Agence

Heritage Properties
31, avenue Princesse Grace

www.heritageproperties.mc

+377 97 70 97 20

Contact

* informations obligatoires

Retour à la liste

FR EN IT

Quartiers de Monaco

Anse du Portier / Carré d'Or / Condamine / Fontvieille / Jardin Exotique / La Rousse - Saint Roman / Larvotto / Monaco-Ville / Moneghetti / Monte-Carlo / Port