Studio moderne avec parking | Carré d'or

3 200 000 €
Miells-Christie's

Miells-Christie's

14 Avenue de la Costa

Nous vous proposons à la vente un très beau studio, parfaitement agencé afin d’optimiser tout l’espace, idéalement situé au cœur du Carré d’Or, offrant un emplacement privilégié à deux pas du Casino et de ses jardins.

Réf. : MP-2839
Prix : 3 200 000 €
Nombre de pièces : studio
SDB : 1
Type de bien : Appartement
Immeuble : Les Floralies
Quartier : Carré d'Or (Monaco)
Superficie hab. : 31 m²
Superficie totale : 40 m²
Superficie terrasse : 9 m²
Etage : 1
Libération : Disponible
Parkings : 1

Plus de détails

A quelques pas du casino, face au célèbre Hôtel Métropole et son shopping center, ce beau studio rénové est situé dans un immeuble de haut standing, disposant d'un service de conciergerie et de sécurité 24h/24.

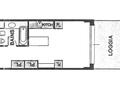
Agencé de façon ingénieuse, l'appartement est très agréable. Il se compose comme suit : Un hall d’entrée avec de grands placards, une belle salle de bains, une pièce à vivre dotée de nombreux rangements sur mesure et d’un lit intégré, une cuisine ouverte avec îlot, ainsi qu’une loggia semi-fermée.

Une place de parking et une cave complètent ce bien.
Miells-Christie's

Miells-Christie's

14 Avenue de la Costa

Contact

DJNQUZ
Copiez le code dans la zone à sa droite
* informations obligatoires

Situation du bien

Carré d'Or

Quartier mythique de la Principauté de Monaco, le Carré d'Or est la zone qui entoure la Place du Casino de Monte-Carlo.

On y retrouve les boutiques des grands noms de la couture de luxe telles que Hermès, Céline, Christian Dior, Saint Laurent Rive Gauche, Louis Vuitton, Gucci, Chanel, Prada, Ichthys ou les vitrines de joailliers avec Cartier, Chopard, Van Cleef Arpels, Bulgari, Piaget, Repossi... Mais aussi des immeubles de haut luxe très prisés par les acquéreurs comme le One Monte-Carlo, le Park Palace, le Metropole, le Mirabeau, le Monte Carlo Star ou encore le Montaigne.

Quartiers de Monaco

Mareterra Carré d'Or Condamine Fontvieille Jardin Exotique La Rousse - Saint Roman Larvotto Monaco-Ville Moneghetti Monte-Carlo Port