DROIT AU BAIL : CARRE D'OR

4 500 000 €
Agence Gramaglia

Agence Gramaglia

9, avenue Princesse Alice

Magnifique boutique à 2 pas du casino rénové avec des matériaux luxueux et disposant d'une très belle vitrine

Réf. : VTE DROIT AU BAIL MC
Prix : 4 500 000 €
Nombre de pièces : 6
Type de bien : Cession de droit au bail
Quartier : Carré d'Or (Monaco)
Superficie hab. : 240 m²
Superficie totale : 300 m²
Superficie terrasse : 60 m²
Etage : RDC
Libération : Rapidement

Plus de détails

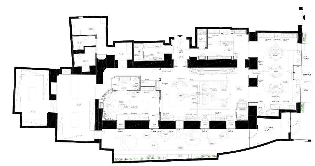
Idéalement situé en plein cœur du carré d'or, cette boutique d'une superficie totale de 300 m² entièrement rénovée avec des matériaux de grandes qualités se compose de :

- une entrée, un grand salon, un salon VIP, un petit salon avec sa cabine d’essayage, 1 powder room, des toilettes hommes femmes, un coin cuisine, un bureau, un atelier, un espace de stockage et une terrasse privée

Entièrement climatisé et sécurisé (cameras de surveillance)

Activités autorisées dans le bail actuel : achat et vente de prêt à porter haut de gamme pour hommes, femmes et enfants, compris fourrures, chaussures, maroquinerie et tous accessoires de mode, parfums, articles de maison et de décoration, 

Agence Gramaglia

Agence Gramaglia

9, avenue Princesse Alice

Contact

FLUWYZ
Copiez le code dans la zone à sa droite
* informations obligatoires

Situation du bien

Carré d'Or

Quartier mythique de la Principauté de Monaco, le Carré d'Or est la zone qui entoure la Place du Casino de Monte-Carlo.

On y retrouve les boutiques des grands noms de la couture de luxe telles que Hermès, Céline, Christian Dior, Saint Laurent Rive Gauche, Louis Vuitton, Gucci, Chanel, Prada, Ichthys ou les vitrines de joailliers avec Cartier, Chopard, Van Cleef Arpels, Bulgari, Piaget, Repossi... Mais aussi des immeubles de haut luxe très prisés par les acquéreurs comme le One Monte-Carlo, le Park Palace, le Metropole, le Mirabeau, le Monte Carlo Star ou encore le Montaigne.

Quartiers de Monaco

Mareterra Carré d'Or Condamine Fontvieille Jardin Exotique La Rousse - Saint Roman Larvotto Monaco-Ville Moneghetti Monte-Carlo Port