APPARTEMENT 3 PIÈCES AVEC TERRASSE & BALCON – VUE MER ET MONTAGNE

Prix sur demande Exclusivité
RI Properties

RI Properties

1 Bd Princesse Charlotte

Réf. : 3PJ10
Prix : Sur demande
Nombre de pièces : 3 pièces
Chambres : 2
SDB : 2
Type de bien : Appartement
Immeuble : Auteuil
Quartier : La Rousse - Saint Roman (Monaco)
Superficie hab. : 120 m²
Superficie totale : 145 m²
Superficie terrasse : 25 m²
Parkings : 1
Exclusivité

Plus de détails

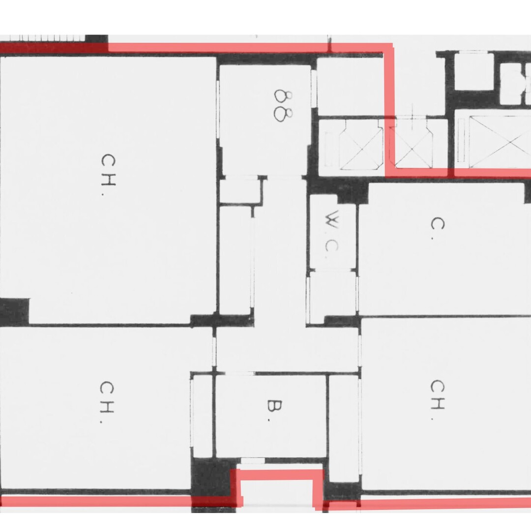
Situé en étage élevé de la résidence Auteuil, avec service de conciergerie, ce 3 pièces traversant séduit par sa luminosité, ses beaux volumes et ses généreux espaces extérieurs, comprenant une terrasse exposée Sud-Ouest et un balcon couvert côté Nord-Est.
Un bien idéal pour un projet de rénovation.

L’appartement se compose d’une entrée avec couloir, menant à un vaste séjour parqueté baigné de lumière grâce à deux grandes portes-fenêtres donnant accès à la terrasse.
La cuisine indépendante, accessible via un sas avec toilettes invités, bénéficie elle aussi d’une ouverture sur le balcon.

L’espace nuit, bien distinct, offre deux chambres : l’une ouvrant sur la terrasse, l’autre sur le balcon.
Une salle de bains complète avec baignoire, meuble vasque, bidet et WC vient compléter ce coin nuit.

L’appartement est desservi par un ascenseur principal arrivant directement à l’intérieur, ainsi qu’une entrée de service par le balcon, via un ascenseur secondaire.

Une cave et un parking complètent ce bien à la vente.

RI Properties

RI Properties

1 Bd Princesse Charlotte

Contact

CJRTVW
Copiez le code dans la zone à sa droite
* informations obligatoires

Situation du bien

Quartiers de Monaco

Mareterra Carré d'Or Condamine Fontvieille Jardin Exotique La Rousse - Saint Roman Larvotto Monaco-Ville Moneghetti Monte-Carlo Port