Appartements à vendre à Monaco

ROSA MARIS - Fontvieille - 2 Pièces Rénové – Vue Roseraie

Retour à la liste

Appartement 2 pièces en étage élevé sur le port de Fontvieille, avec loggias offrant une vue dégagée sur la Roseraie Princesse Grace. Résidence avec concierge et piscine. Parking et cave inclus.

4 950 000 €
Nombre de pièces : 2 pièces
Type de bien : Appartement
Ville : Monaco
Pays : Monaco
Superficie hab. : 53 m²
Superficie totale : 69 m²
Superficie terrasse : 16 m²
Etage : 9
Parkings : 1

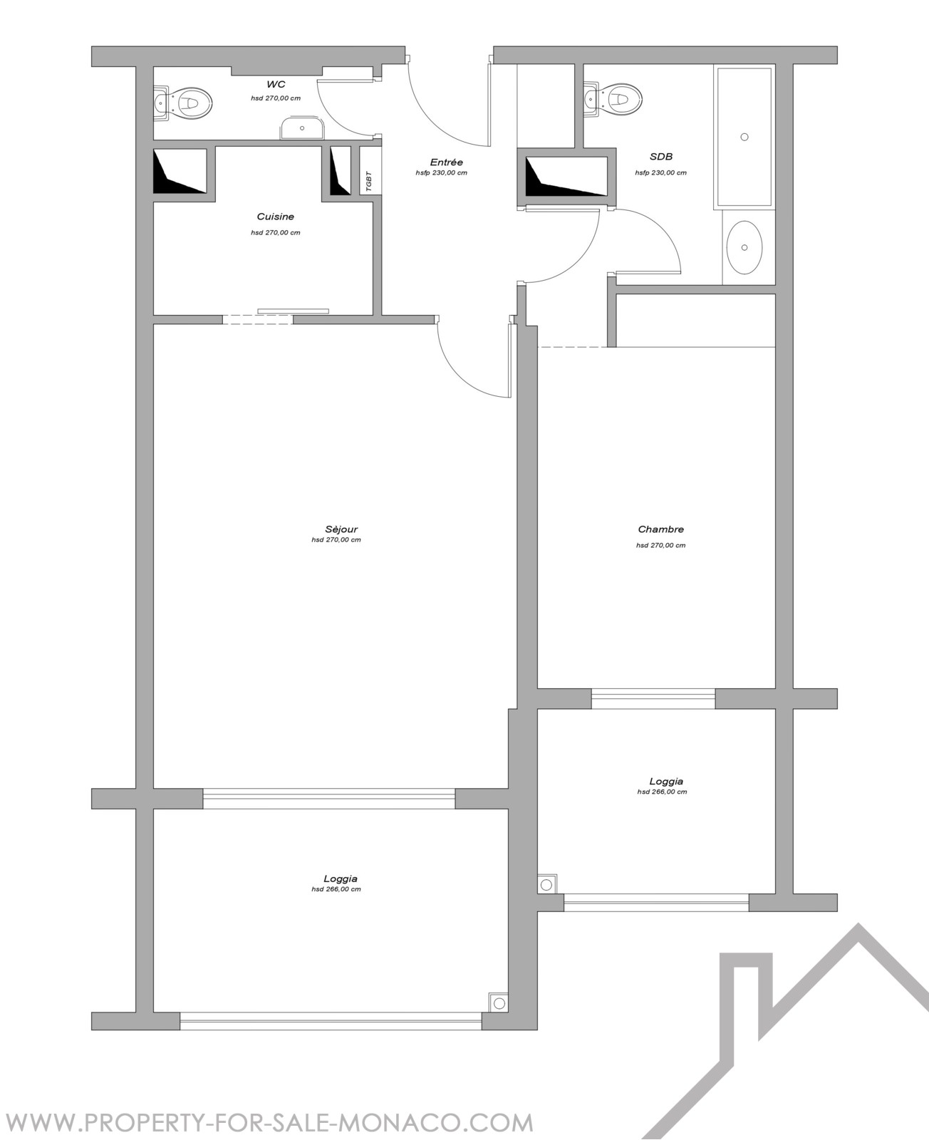
Situé sur le port de Fontvieille, au sein d’une résidence de style Néoprovençal avec conciergerie et piscine, cet appartement de 2 pièces bénéficie d’un étage élevé et d’une vue dégagée sur la Roseraie Princesse Grace.

D’une surface habitable de 53 m², il est complété par 16 m² de loggias, accessibles depuis toutes les pièces.

Agencement :

  • Hall d’entrée
  • Séjour ouvrant sur la loggia
  • Cuisine équipée
  • Chambre avec accès à la loggia
  • Salle de bains
  • Toilette invités

Annexes : Un parking et une cave dans l’immeuble complètent ce bien.


Situation du bien

Agence

Heritage Properties
31, avenue Princesse Grace

www.heritageproperties.mc

+377 97 70 97 20

Contact

* informations obligatoires

Retour à la liste

FR EN IT

Quartiers de Monaco

Anse du Portier / Carré d'Or / Condamine / Fontvieille / Jardin Exotique / La Rousse - Saint Roman / Larvotto / Monaco-Ville / Moneghetti / Monte-Carlo / Port