ROSA MARIS - Fontvieille - 2 Pièces Rénové – Vue Roseraie

4 790 000 €
Heritage Properties

Heritage Properties

31, avenue Princesse Grace

Appartement 2 pièces en étage élevé sur le port de Fontvieille, avec loggias offrant une vue dégagée sur la Roseraie Princesse Grace. Résidence avec concierge et piscine. Parking et cave inclus.

Réf. : HP-VRM29
Prix : 4 790 000 €
Nombre de pièces : 2 pièces
Chambres : 1
SDB : 1
Type de bien : Appartement
Immeuble : Rosa Maris
Quartier : Fontvieille (Monaco)
Superficie hab. : 53 m²
Superficie totale : 69 m²
Superficie terrasse : 16 m²
Etage : 9
Parkings : 1

Plus de détails

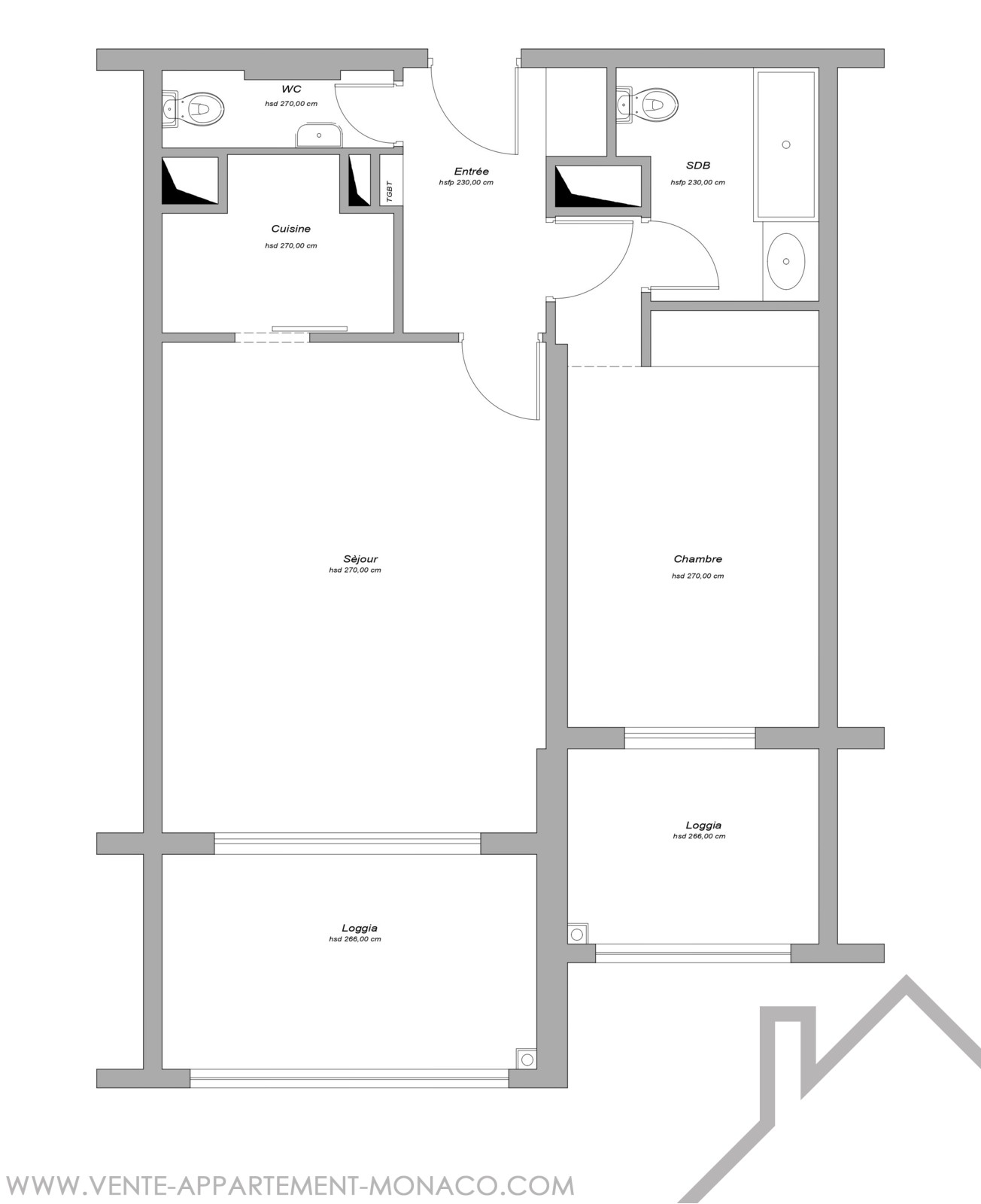
Situé sur le port de Fontvieille, au sein d’une résidence de style Néoprovençal avec conciergerie et piscine, cet appartement de 2 pièces bénéficie d’un étage élevé et d’une vue dégagée sur la Roseraie Princesse Grace.

D’une surface habitable de 53 m², il est complété par 16 m² de loggias, accessibles depuis toutes les pièces.

Agencement :

  • Hall d’entrée
  • Séjour ouvrant sur la loggia
  • Cuisine équipée
  • Chambre avec accès à la loggia
  • Salle de bains
  • Toilette invités

Annexes : Un parking et une cave dans l’immeuble complètent ce bien.

Heritage Properties

Heritage Properties

31, avenue Princesse Grace

Contact

BFHJLO
Copiez le code dans la zone à sa droite
* informations obligatoires

Situation du bien

Fontvieille

Le quartier de Fontvieille, situé dans la partie ouest de Monaco est limitrophe de la ville de Cap d'Ail. Il abrite des usines, des bureaux et des habitations, un centre de secours des sapeurs-pompiers monégasques.

Quartiers de Monaco

Mareterra Carré d'Or Condamine Fontvieille Jardin Exotique La Rousse - Saint Roman Larvotto Monaco-Ville Moneghetti Monte-Carlo Port