Bureau en parfait état / Local commercial à Fontvieille

2 014 000 €
Carat Properties

Carat Properties

Tour Odéon 36 av. de l'Annonciade

Réf. : MF007 Botticelli
Prix : 2 014 000 €
Nombre de pièces : 2 pièces
Type de bien : Bureau
Immeuble : Botticelli
Quartier : Fontvieille (Monaco)
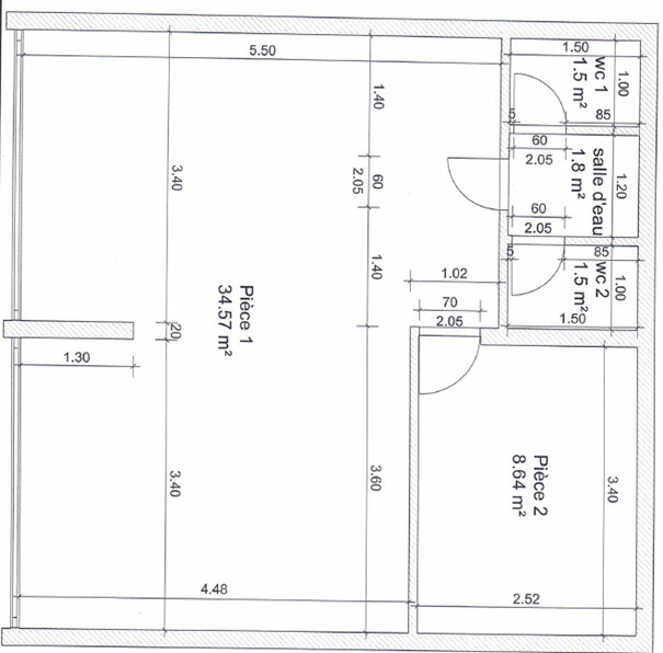
Superficie hab. : 49 m²
Superficie totale : 49 m²
Etage : RDC
Libération : 31/10/2025

Plus de détails

Beau bureau avec vitrine, situé dans un immeuble de bon standing à Fontvieille sur la Place des Oliviers.

D'une superficie confortable de 49m², l'espace est divisé en 2 bureaux

2 toilettes 

Placards

Bien loué jusqu'au 31/10/2025

Carat Properties

Carat Properties

Tour Odéon 36 av. de l'Annonciade

Contact

BCGJNR
Copiez le code dans la zone à sa droite
* informations obligatoires

Situation du bien

Quartiers de Monaco

Mareterra Carré d'Or Condamine Fontvieille Jardin Exotique La Rousse - Saint Roman Larvotto Monaco-Ville Moneghetti Monte-Carlo Port