MAGNIFIQUE PENTHOUSE VUE MER - LE PALAIS DU PRINTEMPS

13 400 000 €
Petrini Exclusive Real Estate Monaco

Petrini Exclusive Real Estate Monaco

3 Avenue des Citronniers

Au cœur des Moneghetti, découvrez ce penthouse en duplex, fusion parfaite entre l'élégance d'un immeuble Bourgeois et une rénovation contemporaine. Montez par son escalier intérieur et laissez-vous surprendre par une grande terrasse sur le toit, équipée d'une pergola et d'une cuisine d'été, dévoilant une vue imprenable sur la mer Méditerranée.

Réf. : PEV535
Prix : 13 400 000 €
Nombre de pièces : 4 pièces
Chambres : 3
SDB : 3
Type de bien : Appartement
Immeuble : Palais du Printemps
Quartier : Moneghetti (Monaco)
Superficie hab. : 163 m²
Superficie totale : 316 m²
Superficie terrasse : 153 m²
Etage : 9-10

Plus de détails

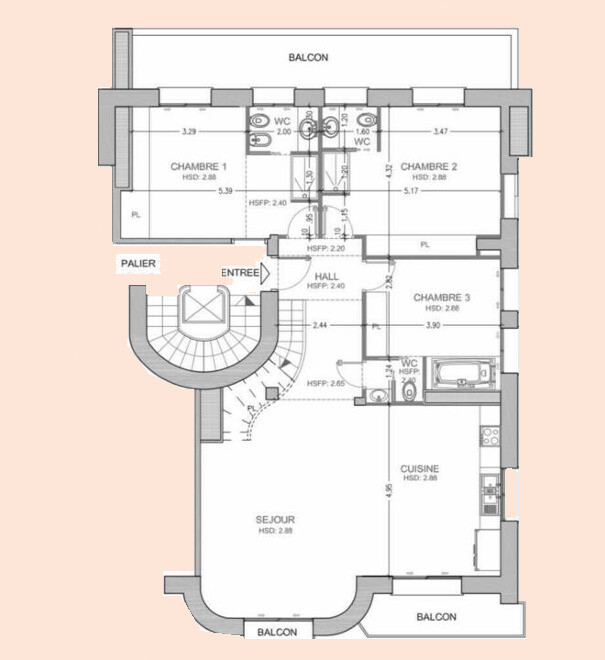
Superbe penthouse duplex récemment rénové situé dans un immeuble de style Bourgeois sur le boulevard de Belgique. Le bien se dévoile avec une entrée menant à un salon/salle à manger qui donne sur un balcon, offrant ainsi une vue imprenable sur la mer. Il dispose d'une cuisine moderne ouverte, ainsi que de deux chambres, chacune avec sa salle de douche et un accès au balcon. Une troisième chambre est complétée par une salle de bains. L'étage supérieur se distingue par une vaste terrasse équipée d'une pergola et d'une cuisine d'été, le tout surplombant la mer.

Selon vos préférences, la cuisine peut être isolée ou intégrée au séjour.

Un parking est également disponible à la location dans l'immeuble Les Oliviers.

Petrini Exclusive Real Estate Monaco

Petrini Exclusive Real Estate Monaco

3 Avenue des Citronniers

Contact

CDGLTZ
Copiez le code dans la zone à sa droite
* informations obligatoires

Situation du bien

Quartiers de Monaco

Mareterra Carré d'Or Condamine Fontvieille Jardin Exotique La Rousse - Saint Roman Larvotto Monaco-Ville Moneghetti Monte-Carlo Port