CONDAMINE / RUE PRINCESSE CAROLINE / 3 PIECES USAGE MIXTE

4 750 000 €
Coldwell Banker Etic Realty

Coldwell Banker Etic Realty

15, boulevard Princesse Charlotte

Réf. : VMC-2024-58
Prix : 4 750 000 €
Nombre de pièces : 3 pièces
Chambres : 2
SDB : 2
Type de bien : Appartement
Quartier : Port (Monaco)
Superficie totale : 95 m²
Libération : À convenir
Meublé : Oui

Plus de détails

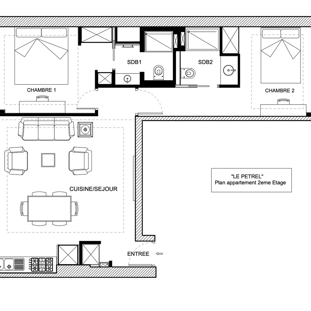
QUARTIER CONDAMINE - Un bel appartement de 3 pièces à usage mixte (habitation ou bureau), situé au 2ème étage (hauteur d’un 3ème niveau) de l’immeuble « Le Petrel », résidence moderne avec ascenseur, idéalement positionné sur l’unique rue piétonne de la Principauté.

Lumineux, épuré, délicat - à quelques pas du Port Hercules, cet appartement a été entièrement rénové en utilisant des matériaux haut de gamme et un soin particulier des finitions.

Il se compose d’un hall d’entrée, d’un salon et cuisine ouverte, avec terrasse, et de deux chambres et deux salles de bain avec terrasses également. 

Coldwell Banker Etic Realty

Coldwell Banker Etic Realty

15, boulevard Princesse Charlotte

Contact

AEPQSU
Copiez le code dans la zone à sa droite
* informations obligatoires

Situation du bien

Quartiers de Monaco

Mareterra Carré d'Or Condamine Fontvieille Jardin Exotique La Rousse - Saint Roman Larvotto Monaco-Ville Moneghetti Monte-Carlo Port