MONACO - LE TROCADERO

6 100 000 €
CAPI

CAPI

31, avenue Princesse Grace

SPACIEUX BUREAU A SAISIR

Réf. : 1C2 TROCADERO
Prix : 6 100 000 €
Nombre de pièces : 3 pièces
SDB : 1
Type de bien : Autre produit
Immeuble : Trocadero
Quartier : Monte-Carlo (Monaco)
Superficie hab. : 130 m²
Superficie totale : 158 m²
Superficie terrasse : 28 m²
Etage : 1

Plus de détails

Situé entre le Larvotto et la Place du Casino, le Trocadero est un immeuble de standing avec conciergerie.

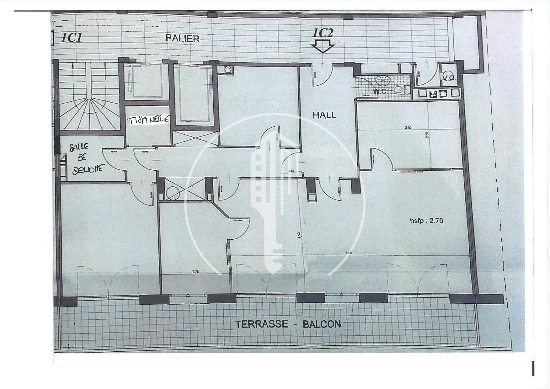
Ce bureau, refait à neuf et lumineux , au premier étage se développe sur une surface de 158m² dont 28 de loggia et se compose comme suit:

  • Un hall d'entrée
  • Un toilette invités
  • Un open space accueillant une pièce principale et deux bureaux séparés par des cloisons vitrées, ainsi qu'un bureau de direction, chacun ayant accès sur la terrasse.
  • Un second bureau donnant sur l'arrière de l'appartement
  • Une tisanerie
  • Une salle de douche
CAPI

CAPI

31, avenue Princesse Grace

Contact

BGJNRY
Copiez le code dans la zone à sa droite
* informations obligatoires

Situation du bien

Quartiers de Monaco

Mareterra Carré d'Or Condamine Fontvieille Jardin Exotique La Rousse - Saint Roman Larvotto Monaco-Ville Moneghetti Monte-Carlo Port