3 PIECES - "TROCADERO"

7 700 000 € Exclusivité
CAPI

CAPI

31, avenue Princesse Grace

Bel appartement de 3 pièces vue mer

Réf. : 4C2
Prix : 7 700 000 €
Nombre de pièces : 3 pièces
Chambres : 2
SDB : 2
Type de bien : Appartement
Immeuble : Trocadero
Quartier : Monte-Carlo (Monaco)
Superficie hab. : 130 m²
Superficie totale : 163 m²
Superficie terrasse : 33 m²
Etage : 4
Exclusivité

Plus de détails

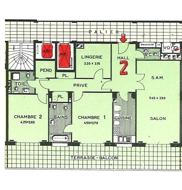
L'appartement se compose d'un beau hall d'entrée avec un toilette invités, d'un salon et de sa cuisine séparée. 

Une lingerie se situe dans la partie nuit avec des placards et une salle de douche sans fenêtre. 

Les 2 chambres et la 2ème salle de douche sont vue mer ainsi que la terrasse.

L’appartement dispose d’une cave.

Pas de rétrocession.

CAPI

CAPI

31, avenue Princesse Grace

Contact

ADHNRS
Copiez le code dans la zone à sa droite
* informations obligatoires

Situation du bien

Quartiers de Monaco

Mareterra Carré d'Or Condamine Fontvieille Jardin Exotique La Rousse - Saint Roman Larvotto Monaco-Ville Moneghetti Monte-Carlo Port