GRANADA

1 650 000 €
AFIM SAM

AFIM SAM

3, avenue de Grande Bretagne

Réf. : 517V15699A
Prix : 1 650 000 €
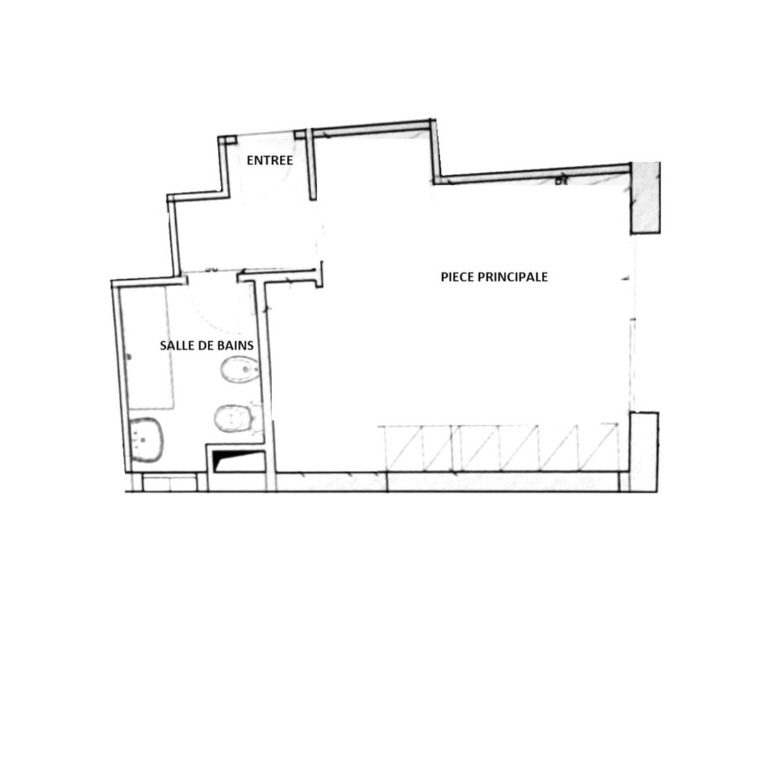
Nombre de pièces : studio
SDB : 1
Type de bien : Appartement
Immeuble : Granada
Quartier : Jardin Exotique (Monaco)
Superficie hab. : 28.5 m²
Superficie totale : 30 m²
Superficie terrasse : 1.5 m²

Plus de détails

Sur le boulevard de Belgique, studio meublé, au calme, d'environ 30 m² entièrement rénové dont un petit balcon de 1.50 m². Pièce principale avec grande baie vitrée, lit escamotable, canapé, cuisine américaine toute équipée de neuf avec lave-vaisselle, lave-linge, four, micro ondes, réfrigérateur et salle bains. Libre
AFIM SAM

AFIM SAM

3, avenue de Grande Bretagne

Contact

AEHPRV
Copiez le code dans la zone à sa droite
* informations obligatoires

Situation du bien

Quartiers de Monaco

Mareterra Carré d'Or Condamine Fontvieille Jardin Exotique La Rousse - Saint Roman Larvotto Monaco-Ville Moneghetti Monte-Carlo Port