Appartements à vendre à Monaco

CHATEAU PERIGORD II - La Rousse - 3 Pièces Vue Mer

Retour à la liste

6 450 000 €
Nombre de pièces : 3 pièces
Type de bien : Appartement
Ville : Monaco
Pays : Monaco
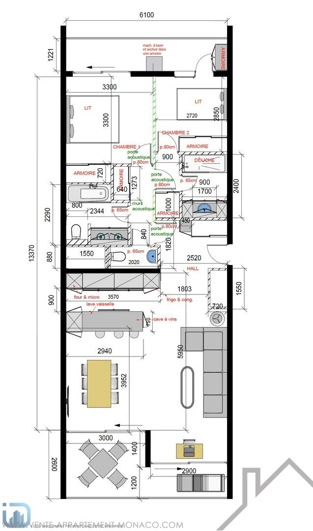
Superficie hab. : 98 m²
Superficie totale : 118 m²
Superficie terrasse : 20 m²
Libération : 15/04/2026

Quartier La Rousse, dans une résidence de standing avec conciergerie 24h/24.

Situé au 12 ème étage ce 3 pièces traversant d'une surface habitable de 98 m² et de 20 m² de terrasses bénéficie d'une vue mer ainsi que d'une double exposition.

Il se compose d'un hall d'entrée avec placards, d'un séjour ouvrant sur une terrasse avec vue mer, d'une cuisine équipée ouverte sur le séjour avec vue mer, de deux chambres avec placards aménagés, d'une salle de bains complète, d'une salle de douche ainsi que d'un toilette invités.


Situation du bien

Agence

Heritage Properties
31, avenue Princesse Grace

www.heritageproperties.mc

+377 97 70 97 20

Contact

* informations obligatoires

Retour à la liste

FR EN IT

Quartiers de Monaco

Anse du Portier / Carré d'Or / Condamine / Fontvieille / Jardin Exotique / La Rousse - Saint Roman / Larvotto / Monaco-Ville / Moneghetti / Monte-Carlo / Port